California

Long-vacant Mission lot to get a Dorito-shaped apartment building


A Mission district parking lot that has sat empty for more than three decades could be transformed into a triangular apartment complex reminiscent of New York’s Flatiron Building.

Proposed plans for the lot at 3230 24th St. show an eight-story, wedge-shaped building with 35 apartments, five of which would be designated for low-income residents. Fourteen units would be studios, 14 would have one bedroom, and the rest would be a mix of two- and three-bedroom apartments. The first floor would be reserved for commercial use, with plans for a cafe and a retail space the developers hope to fill with a florist. 

The project would take advantage of a state law that allows developers to build beyond local height limits if they reserve a portion of apartments as affordable. The lot is otherwise subject to a 55-foot limit.

The lot is owned by Trigona LLC, led by Peter Logan and his mother, Marcy Wong (opens in new tab), partners at Berkeley’s Wong Logan Architects. The firm designed the building but operates independently from the ownership group, Logan said. 

The lot has been vacant since at least 1995, according to aerial photos from the Planning Department, and Google Streetview photos show it has been fenced off since at least 2021. Trigona LLC bought the property Oct. 17 for $1.15 million and submitted initial plans to the Planning Department on Dec. 4. 

It could take years before plans are approved.

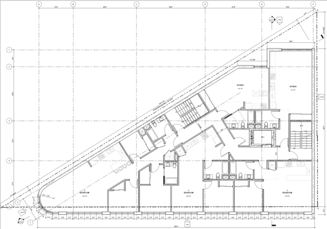
A floor plan of an irregularly shaped building shows three bedrooms, two studios, multiple bathrooms, kitchens, stairwells, and hallways.
The building would have 35 apartments, with some of the larger units inside the corner overlooking 24th and Capp streets. | Source: Wong Logan Architects

Logan said the prime location in the Mission and proximity to BART make it a “good sale” that will deliver much-needed housing. The lot’s previous owners proposed a five-story apartment building that never materialized.

“We think it’s going to be a great project,” he said. “It’s housing density in a city that needs it.” 

Reactions from nearby businesses were split. Josiah Aldrich, manager of Cali Barber Shop and Salon, said he would welcome the foot traffic from new residents but worries that the mostly market-rate project could drive up rents. 

“I’m feeling half and half about it,” he said. 

The Napper Tandy owner Marissa Browne was more optimistic.

“I don’t mind. It’s nothing right now,” she said. “The more units the better.”

Two businesses operate out of the lot: Juanita’s Flowers and a food truck called Birrieria Lucas. Logan confirmed the two vendors would have to relocate while the project is under construction. 

Barrera’s Taqueria owner Rosa Meija said she spoke with Logan last week and is aware of the housing plans, but doesn’t know where she’d take her business, which she has run at the lot for five months and holds a permit to operate. She plans to apply for a street-food vendor permit next week, she said.

“I don’t have any plan for where to go,” she said. “I’m a little nervous.”



Source link

Leave a Reply

Your email address will not be published. Required fields are marked *